Glass Wall Fixing Details . In this approach, compression stresses are applied to fix metal panels or glass units into the glazing pocket of the frames. 1.5 unitized curtain wall panel. these connecting elements represent the “remaining visible” parts and therefore these details become the central focus of interest. glazing methods are provided as follows: 1.4 fixing details of unitized curtain wall system figure: From double skin glazing and low iron glass to fritted glass, glazed facades. to maintain your glass partition wall, clean it regularly, check for damaged or broken glass, and repair or replace it as needed. glazed façades are built around light and views.
from ww5.railing.design
these connecting elements represent the “remaining visible” parts and therefore these details become the central focus of interest. 1.4 fixing details of unitized curtain wall system figure: glazed façades are built around light and views. glazing methods are provided as follows: to maintain your glass partition wall, clean it regularly, check for damaged or broken glass, and repair or replace it as needed. From double skin glazing and low iron glass to fritted glass, glazed facades. In this approach, compression stresses are applied to fix metal panels or glass units into the glazing pocket of the frames. 1.5 unitized curtain wall panel.
Glass Railing Fixing Detail Railing Design Reference
Glass Wall Fixing Details In this approach, compression stresses are applied to fix metal panels or glass units into the glazing pocket of the frames. In this approach, compression stresses are applied to fix metal panels or glass units into the glazing pocket of the frames. From double skin glazing and low iron glass to fritted glass, glazed facades. to maintain your glass partition wall, clean it regularly, check for damaged or broken glass, and repair or replace it as needed. 1.4 fixing details of unitized curtain wall system figure: glazed façades are built around light and views. these connecting elements represent the “remaining visible” parts and therefore these details become the central focus of interest. glazing methods are provided as follows: 1.5 unitized curtain wall panel.
From www.glassparts.co.uk
Wall To Glass Fixing Polished Chrome Glass Wall Fixing Details glazing methods are provided as follows: 1.4 fixing details of unitized curtain wall system figure: these connecting elements represent the “remaining visible” parts and therefore these details become the central focus of interest. to maintain your glass partition wall, clean it regularly, check for damaged or broken glass, and repair or replace it as needed. In this. Glass Wall Fixing Details.
From www.pinterest.ca
glass wall detail Google Search Mampara de cristal, Puertas Glass Wall Fixing Details glazing methods are provided as follows: In this approach, compression stresses are applied to fix metal panels or glass units into the glazing pocket of the frames. to maintain your glass partition wall, clean it regularly, check for damaged or broken glass, and repair or replace it as needed. these connecting elements represent the “remaining visible” parts. Glass Wall Fixing Details.
From www.romstorprojects.co.uk
Frameless Glass Partitions Romstor Projects Glass Wall Fixing Details 1.5 unitized curtain wall panel. In this approach, compression stresses are applied to fix metal panels or glass units into the glazing pocket of the frames. 1.4 fixing details of unitized curtain wall system figure: to maintain your glass partition wall, clean it regularly, check for damaged or broken glass, and repair or replace it as needed. glazed. Glass Wall Fixing Details.
From www.digitalawardzz.com
Glass Partition Wall Details Dwg Glass Designs Glass Wall Fixing Details 1.5 unitized curtain wall panel. these connecting elements represent the “remaining visible” parts and therefore these details become the central focus of interest. to maintain your glass partition wall, clean it regularly, check for damaged or broken glass, and repair or replace it as needed. glazing methods are provided as follows: In this approach, compression stresses are. Glass Wall Fixing Details.
From www.youtube.com
how to fix glass on wall, glass installation, looking glass fitting Glass Wall Fixing Details From double skin glazing and low iron glass to fritted glass, glazed facades. In this approach, compression stresses are applied to fix metal panels or glass units into the glazing pocket of the frames. 1.4 fixing details of unitized curtain wall system figure: these connecting elements represent the “remaining visible” parts and therefore these details become the central focus. Glass Wall Fixing Details.
From www.deltaglassnj.com
Glass Walls, Safe Installation in 5 Simple Steps — Delta Glass NJ Glass Wall Fixing Details these connecting elements represent the “remaining visible” parts and therefore these details become the central focus of interest. In this approach, compression stresses are applied to fix metal panels or glass units into the glazing pocket of the frames. glazed façades are built around light and views. 1.4 fixing details of unitized curtain wall system figure: to. Glass Wall Fixing Details.
From www.jlconline.com
Installing a Glass Block Wall JLC Online Glass Wall Fixing Details In this approach, compression stresses are applied to fix metal panels or glass units into the glazing pocket of the frames. 1.5 unitized curtain wall panel. From double skin glazing and low iron glass to fritted glass, glazed facades. glazing methods are provided as follows: to maintain your glass partition wall, clean it regularly, check for damaged or. Glass Wall Fixing Details.
From dwgmodels.com
Glass wall systems details DWG, AutoCAD drawings Glass Wall Fixing Details glazing methods are provided as follows: to maintain your glass partition wall, clean it regularly, check for damaged or broken glass, and repair or replace it as needed. glazed façades are built around light and views. 1.5 unitized curtain wall panel. 1.4 fixing details of unitized curtain wall system figure: From double skin glazing and low iron. Glass Wall Fixing Details.
From iqubx.com
Glass Partition wall system Modular Aluminium Glazed Partition Glass Wall Fixing Details 1.4 fixing details of unitized curtain wall system figure: these connecting elements represent the “remaining visible” parts and therefore these details become the central focus of interest. to maintain your glass partition wall, clean it regularly, check for damaged or broken glass, and repair or replace it as needed. glazing methods are provided as follows: glazed. Glass Wall Fixing Details.
From ww5.railing.design
Glass Railing Fixing Detail Railing Design Reference Glass Wall Fixing Details In this approach, compression stresses are applied to fix metal panels or glass units into the glazing pocket of the frames. these connecting elements represent the “remaining visible” parts and therefore these details become the central focus of interest. glazed façades are built around light and views. to maintain your glass partition wall, clean it regularly, check. Glass Wall Fixing Details.
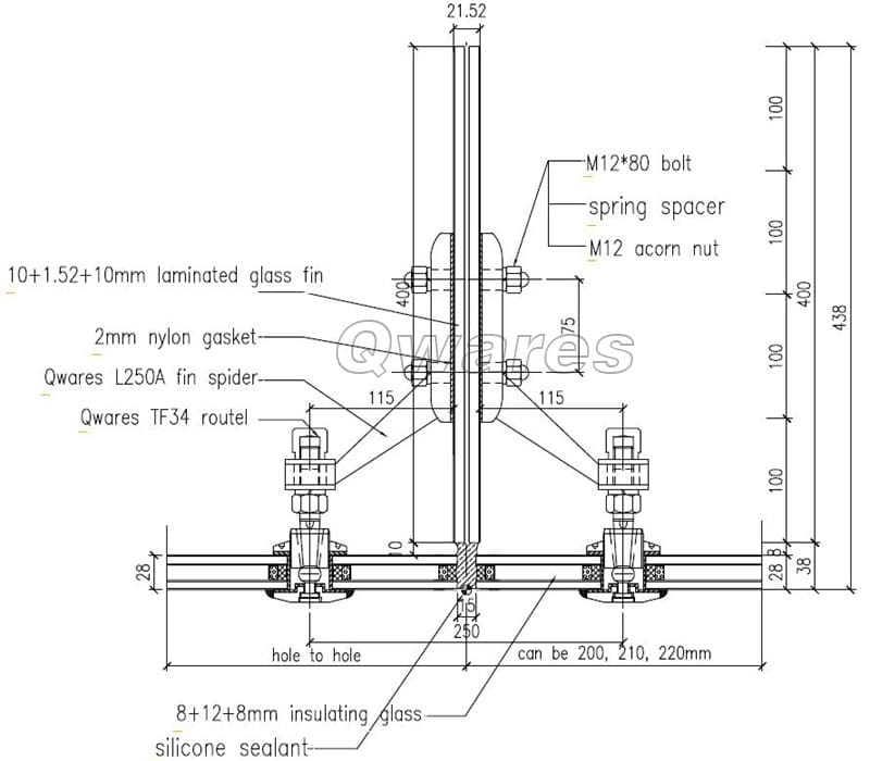
From qwares.com
ASK Qwares 01 How to design structural glass wall by fin spider Glass Wall Fixing Details glazing methods are provided as follows: 1.4 fixing details of unitized curtain wall system figure: In this approach, compression stresses are applied to fix metal panels or glass units into the glazing pocket of the frames. these connecting elements represent the “remaining visible” parts and therefore these details become the central focus of interest. From double skin glazing. Glass Wall Fixing Details.
From www.pinterest.at
Curtain wall detail, Glass curtain wall, Curtain wall Glass Wall Fixing Details to maintain your glass partition wall, clean it regularly, check for damaged or broken glass, and repair or replace it as needed. In this approach, compression stresses are applied to fix metal panels or glass units into the glazing pocket of the frames. glazed façades are built around light and views. these connecting elements represent the “remaining. Glass Wall Fixing Details.
From www.planmarketplace.com
JOINERY WORKSTypical Wall Details (Drywall, Glass Partition, Wooden Glass Wall Fixing Details these connecting elements represent the “remaining visible” parts and therefore these details become the central focus of interest. From double skin glazing and low iron glass to fritted glass, glazed facades. 1.4 fixing details of unitized curtain wall system figure: to maintain your glass partition wall, clean it regularly, check for damaged or broken glass, and repair or. Glass Wall Fixing Details.
From www.alibaba.com
Exterior Wall Cladding Aluminum Frame Glass Wall System Factory Buy Glass Wall Fixing Details 1.5 unitized curtain wall panel. these connecting elements represent the “remaining visible” parts and therefore these details become the central focus of interest. to maintain your glass partition wall, clean it regularly, check for damaged or broken glass, and repair or replace it as needed. From double skin glazing and low iron glass to fritted glass, glazed facades.. Glass Wall Fixing Details.
From openlab.citytech.cuny.edu
Channel Glass (Nayaab) Bronx Library Center Glass Wall Fixing Details glazed façades are built around light and views. 1.5 unitized curtain wall panel. these connecting elements represent the “remaining visible” parts and therefore these details become the central focus of interest. In this approach, compression stresses are applied to fix metal panels or glass units into the glazing pocket of the frames. 1.4 fixing details of unitized curtain. Glass Wall Fixing Details.
From www.youtube.com
glass wall designing final installation work glass wall fixing Glass Wall Fixing Details to maintain your glass partition wall, clean it regularly, check for damaged or broken glass, and repair or replace it as needed. 1.5 unitized curtain wall panel. glazing methods are provided as follows: 1.4 fixing details of unitized curtain wall system figure: From double skin glazing and low iron glass to fritted glass, glazed facades. glazed façades. Glass Wall Fixing Details.
From www.jnf.pt
Glass support Wall fixing for glass 1025mm JNF Glass Wall Fixing Details glazed façades are built around light and views. to maintain your glass partition wall, clean it regularly, check for damaged or broken glass, and repair or replace it as needed. From double skin glazing and low iron glass to fritted glass, glazed facades. In this approach, compression stresses are applied to fix metal panels or glass units into. Glass Wall Fixing Details.
From archi-monarch.in
FREE STANDING FIX GLASS DETAIL ONE ⋆ ArchiMonarch Glass Wall Fixing Details to maintain your glass partition wall, clean it regularly, check for damaged or broken glass, and repair or replace it as needed. glazed façades are built around light and views. these connecting elements represent the “remaining visible” parts and therefore these details become the central focus of interest. In this approach, compression stresses are applied to fix. Glass Wall Fixing Details.